DFL
DFL
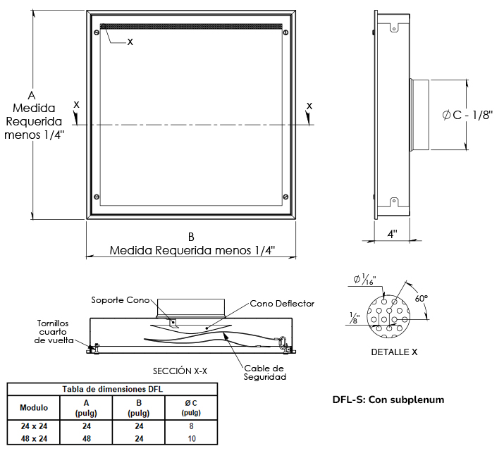
Los espacios en industrias tales como farmacéutica, biotecnología, hospitales, cuidado médico y de producción de dispositivos microelectrónicos, requieren condiciones de calidad de aire superiores a las de otro tipo de habitaciones. Los difusores del flujo laminar DFL están diseñados específicamente para exceder los rigurosos requisitos de cuartos limpios y ambientes críticos ofreciendo un flujo uniforme a través de toda la superficie de su placa perforada para mantener la limpieza del ambiente y desalojar contaminantes. Los difusores DFL están fabricados en acero inoxidable, cuentan con la opción de alojar un filtro HEPA (se cotiza por separado) DFL-H o un subplenum DFL-S. La malla frontal perforada es desmontable a través de tornillos cuarto de vuelta y cuenta con un cable de seguridad que sostiene la placa al backpan proporcionando seguridad del instalador o personal de mantenimiento y posible daño en el producto. El acabado disponible es Pulido P4, los tamaños disponibles son módulos de 24"x24" con cuello 8" y módulos de 48"x24" con cuellos de 8" o 10". Como accesorios opcionales, contamos con el filtro HEPA y los puertos de medición.
Características
- Difusor de flujo laminar
- Modelo DFL-H incluye plenum para alojar filtro HEPA (no incluido)
- Modelo DFL-S incluye subplenum
- Placa perforada desmontable con tornillos cuarto de vuelta
- Cable de seguridad
Materiales y acabados
- Fabricado en acero inoxidable
- Acabado pulido P4
Dimensiones
- Módulos de 24"x24" con cuello 8"
- Módulos de 24"x48" con cuello 8" o 10"


Los difusores de flujo laminar modelo DFL de la marca Innes estarán fabricados en acero inoxidable, contarán con la opción de alojar un filtro HEPA (se cotiza por separado) siendo el modelo DFL-H o subplenum modelo DFL-S. La malla frontal perforada será desmontable a través de tornillos cuarto de vuelta y contará con un cable de seguridaxd que sostiene la placa al backpan proporcionando seguridad del instalador o personal de mantenimiento y posible daño en el producto. El acabado disponible será Pulido P4 y los tamaños disponibles serán módulos de 24"x24" con cuello 8" y módulos de 48"x24" con cuellos de 8" o 10". Como accesorios opcionales, contará con el filtro HEPA y los puertos de medición.
-
Hospitales y Clínicas